Dom Bydgoszcz Miedzyń
Bydgoszcz Pokaż na mapie ›
Odświeżone: Niedziela, 14 Wrzesień, 2025 18:01
995 000 zł
7370 zł/m2
Szczegóły ogłoszenia
- Kategoria: Domy / Sprzedaż
- Powierzchnia:135 m2
- Liczba pokoi:5 i więcej pokoi
- Pow. działki:420 m2
- Rynek:Pierwotny
- Rok budowy:2025
- Sprzedaż:Pośrednik
- Cena: 995 000 zł / 7370 zł/m2
Opis oferty
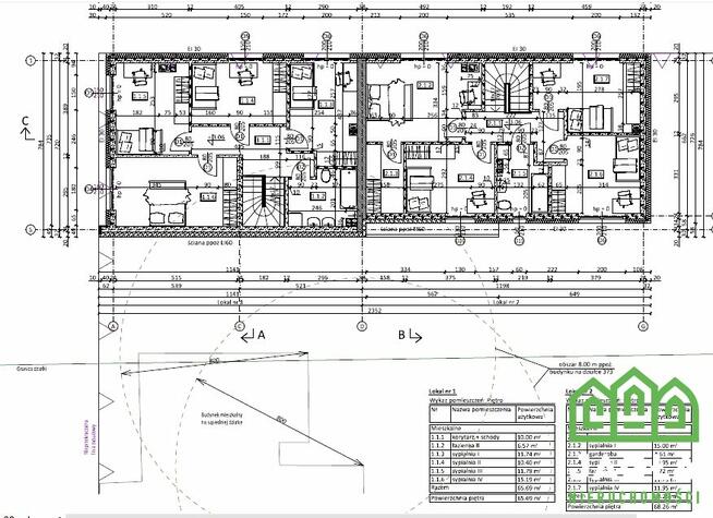
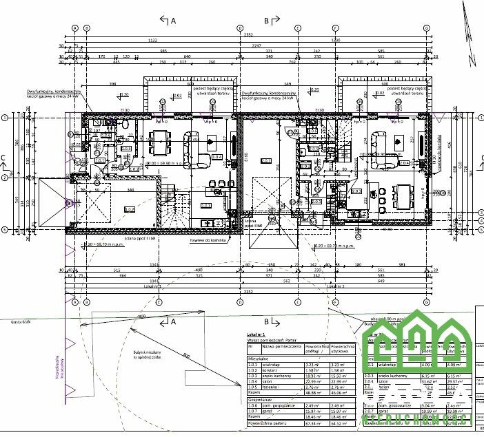
Szukasz nowego domu developerskiego w Bydgoszczy- zapraszamN owy dom w zabudowie bliźniaczej 136 m2 (113m2)
stan developerski zaawansowany Bydgoszcz- Miedzyń z działką około 420m2 - księga wieczysta lokalowa z udziałem w gruncie do wyłącznego korzystania - projekt indywidualny.
Opis i oferta dotyczy lokalu nr 2.
W ofercie także lokal sąsiedni nr 1 - 130m2( 112m2)
Odbiór końcowy- grudzień 2025r.
Nowoczesny design ,wysoki standard realizacji budynku.
Dom dwu-poziomowy .
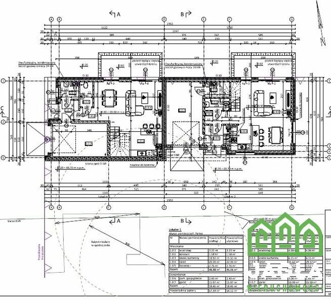
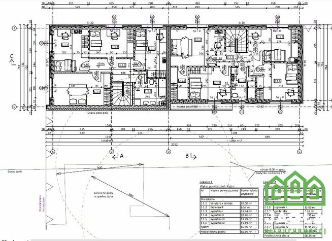
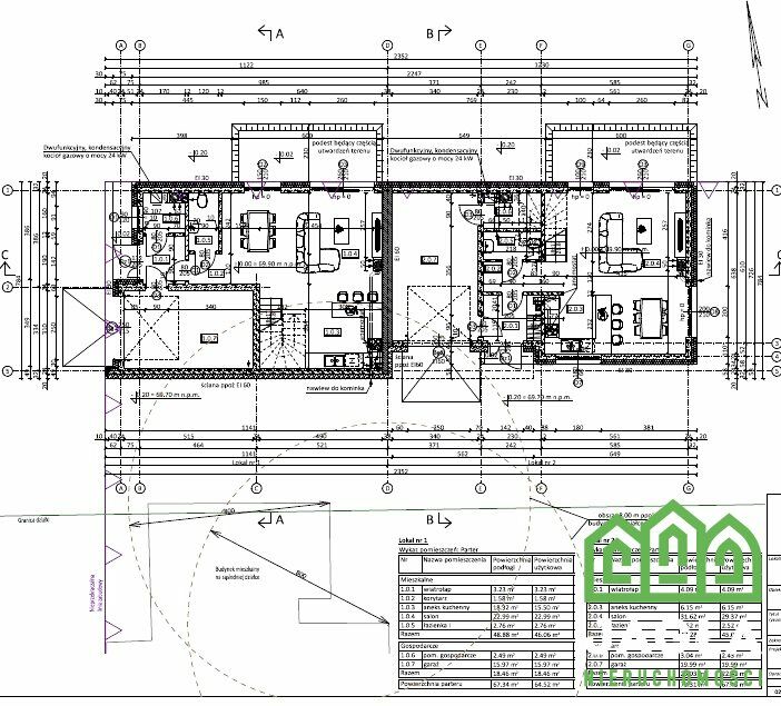
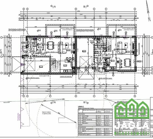
Metraże, rozkład pomieszczeń , zagospodarowanie terenu , rzuty poziome i pionowe budynków oraz poszczególnych kondygnacji- na zdjęciach
Pełna dokumentacja- dostępna podczas prezentacji.
Planowane -ogrzewanie CO gaz- podłogowe.
Okna trzykomorowe antracyt.
Elewacja- tynk szlachetny .
Budynek na zewnątrz-całkowicie wykończony, wewnątrz- stan developerski zaawansowany.
W pobliżu- szkoła , komunikacja, sklepy, markety
Skomunikowanie z centrum miasta .
Oferta dotyczy lokalu A, dostępny także budynek sąsiedni - lokal B.
Zapraszam-w ofercie naszego Biura, także domy o innych parametrach.
Więcej szczegółów oraz oględziny.
Marek Tomaszewski 5333 99924
Marek Tomaszewski 5333 99924
Pośrednik odpowiedzialny zawodowo za wykonanie umowy pośrednictwa: Beata Jagła (licencja nr: 16358)
--------------------------
Nota prawna Opis oferty zawarty na stronie internetowej sporządzany jest na podstawie oględzin nieruchomości oraz informacji uzyskanych od właściciela, może podlegać aktualizacji i nie stanowi oferty określonej w art. 66 i następnych K.C. Więcej informacji https://www.jagla.pl/
Oferta wysłana z systemu Galactica Virgo
Numer oferty: JAG-DS-14560-5
Sprawdź zainteresowanie tym ogłoszeniem
Wyświetlenia
Data dodania
Ostatnio widziany
Obserwujących
Wysłane zapytania
Odsłony telefonu
Powiadom o podobnych ogłoszeniach
Lokalizacja: Bydgoszcz
Kategoria: Nieruchomości » Domy » Sprzedaż
Cena: od 846000 zł do 1144500 zł Powierzchnia : od 115 m2 do 155 m2
Chcę otrzymywać powiadomienia o nowych ofertach
Marek Tomaszewski
Konto firmowe
Na Lento.pl od 16 mar 2023
Strona użytkownika
- Wypromuj ogłoszenie
- Zgłoś naruszenie
- Drukuj ulotkę
- Edytuj/usuń ogłoszenie
- Udostępnij ogłoszenie
- Dodaj na Facebook

















